Control a gas boiler with your home automation system
This post is the second one of a series about controlling by a home automation controller the house heating system described in the first post.
It’s going to describe connection of the heater to home automation system through a wireless Z-wave link.
Be careful, those modifications needs some skills in electricity ! A bad installation could destroy electronic board of the heater, meaning a costly repair.
The heater
My gaz condensing boiler is a Talia Green from Chaffoteaux equipped with an MCD IV module. Two ambient thermostats are connected to it (one Expert Control and one Zone Control). An external thermal probe is also connected to the heater.
User manuals of those devices are available below in PDF format :
| Talia_Green manual | |
| MCD_IV scanned manual MCD_II manual |
|
| Expert control manual |
A particular feature of this boiler is that all different elements are linked with a proprietary MBUS bus. MCD module is linked to boiler with a dedicated MBUS link; thermostats are connected to MCD module with a bus link also which provides data transfers and power supply to those.
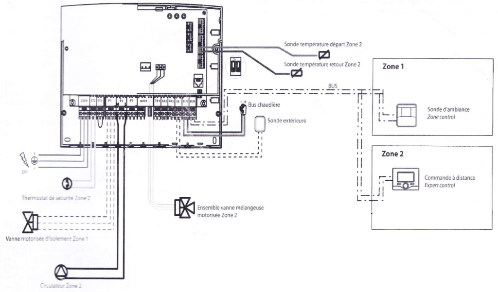
Default connections to boiler
Several use cases are possible with the boiler. They depend on the configuration which is done by the installer but also on the modules that are detected when boiler is powering on.
MCD module is particular because it includes an electronic board equivalent to the one included into the boiler, in particular it includes terminal blocks for the external devices. As soon as the MCD module is connected to the boiler with the dedicated bus, this is the MCD’s terminal blocks that have to be used to connect the other units.
In my case, the default connexions on the MCD module were :
Thermostats (Expert Control, Zone Control) and external thermal probe are connected on BUS terminal and External Probe Terminal (SE) of MCD module.
Zone 1 is dedicated to 2nd floor low temperature radiators.
Zone 2 is for 1st floor floor heating system.
On both zones, configuration of the boiler is activating the most advanced control mode : by using internal probes (thermostats) and the external probe :

The dry contact inputs TA1 and TA2 aren’t used.
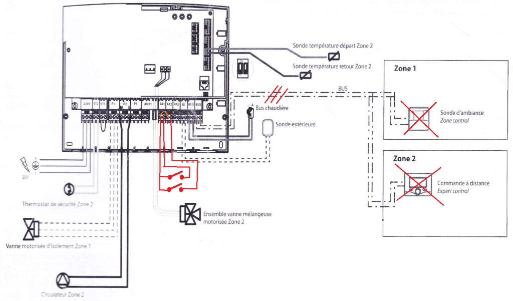
Mode connected to home automation
There’s no possibility, at my knowledge, to connect home automation to Chaffoteaux MBUS. This bus is technically speaking quite simple, but with a proprietary protocole.
We have to use another way to connect : dry contact are going to provide a way to control the boiler. We’ll see in next posts that, although those inputs are simplier (ON/OFF status instead of temperature level), efficiency of control won’t be altered.
Overall connection plan is this one :
Following several test, it appears that inputs TA1 and TA2 can’t be used if thermostats are detected on the bus. To be able to use those dry contact inputs, I had to disconnect the thermostats by removing the wires arriving on the BUS terminal block. In my case wiring was done with 2 CAT5 network cables for both thermostats ( data and power are low voltage one)
It means that thermostats are going to stay powered off without any way to have information displayed :-(.
For both zones, regulation mode have to change. There’s no more internal ambient temperature, but boiler can use external temperature. Home automation controller will control room temperature using its own temperature sensors.

Installing Zwave module
To simplify setup, I’ve decided to install a 2 channels Z-wave modules. Each channel is controlling one heating zone. Before starting installation of the module in the boiler, I’ve paired it with my Z-wave network.
All ON/OFF modules can’t be used. It’s mandatory to have outputs isolated from mains power supply.
To select the correct Z-wave module, this french post “Comparatif des micromodules relais on_off” can help you. The row called “Tension de sortie” is indicating if outputs are independant from power supply of the module :
- For 2 channel modules, there’s no choice, only the Fibaro FGS222 have those kind of outputs, this is the one I’ve used.
- If you have only one heating zone to control the following modules can be used : Fibaro FGS212, Qubino ZMNHND1, Everspring AN179.
Fibaro FGS 222 have a specific organisation. The outputs are not fully independant because IN terminal is common to both. The boiler must then have a common terminal for both dry contact. To ensure this is the case :
- unplug completely boiler from main power supply
- find a continuity tester or a multimeter in ohmmeter mode

- Test between terminal 1 of TA1 and TA2, also terminal 2 of TA1 and TA2. In most boiler, also the Talia, one of the terminal is linked between the two inputs, then impedance is zero.
- IN terminal of Fibaro module will be connected to this common signal on TA1 and TA2.
The wiring schematic between the MCD terminal blocks and the Fibaro module is then :
When wiring is finished, the Fibaro module can be inserted into electronic board case of MCD .
The case can then be closed, and cover of MCD module mounted.
Installation test
The boiler gives access to diagnostics information. Two of those can help verifying correct behaviour of the setup :
If everything is correct, parameter 434 should reflect status of Fibaro module channel 1, you can change its state using your home automation controller.
It’s the same with parameter 534 which should reflect status of Fibaro module channel 2.
Conclusion
The boiler can now be controlled by home automation controller. Start/stop status of boiler is managed by outputs of Fibaro module.
Next posts will describe control mode that can be put in place in the home automation controller.








Bonjour Vincent,
J’ai exactement la même installation que vous initiale sauf que sur le bus j’ai un esay control bus pour la température d’ambiance du RDC plancher chauffant. Or j’ai une pré-installation au 1er étage pour un thermostat d’ambiance (les radiateurs ont des têtes thermostatiques sauf 1 et le circulateur du 1er étage est toujours en marche contrairement à celui du RDC qui ne s’active que s’il y a une demande via le esay control branché sur le bus du MCD)
Je voudrais mettre un thermostat d’ambiance au 1er, je ne sais pas s’il faut le brancher sur TA1, TA2 ou le BUS du MCD ?
Merci pour votre aide.
Bonjour,
Tout dépend du type de thermostat que vous souhaitez mettre à l’étage. Le mieux est de prendre un thermostat de la marque de la chaudière qui se connecte par le bus en parallèle de celui du rez de chaussée, le régulation sera meilleure (proportionnelle au lieu de tout ou rien). C’est en tout cas l’installation qu’avait réalisé le chauffagiste. Mais cela fait bien longtemps que ce thermostat à l’étage est démonté, donc j’aurais du mal à vous en dire plus.
Bonjour, cet article date de plusieures années, mais ayant une chaudiere chaffoteau, je me pose la question d ela domotiser .
le contructeur vend un boitier wifi, ne serais ce pas une porte d entree plus pratique pour conserver le thermostat d ambiance ?
Bonjour, l’utilisation de ce type d’interface doit normalement permettre de mettre en place une domotisation à minimum plus complète et peut être plus facilement. A confirmer qu’au delà de fournir une interface web cette liaison wifi permet de fournir une “api” documentée qui sera la porte d’entrée pour connecter une domotique.
Merci pour cet article qui m’a mis en confiance pour mettre en oeuvre une solution équivalente ! Deux remarques : 1. j’ai pu conserver la commande Expert Control en retirant la zone qu’elle contrôlait (Menu 0, Sous-Menu 3, Paramètre 0 : Numéro zone chauffage) ; 2. J’ai du enlever 2 shunts sur TA1 et TA2 qui étaient sur le bornier de la chaudière (alors que mes relais sont connectés sur le bornier du module thermique).
Merci pour votre commentaire.
J’ai changé de système domotique et vais devoir reprogrammer l’ensemble.
Pourquoi souhaitez-vous garder l’expert control ? Si je comprend bien il ne contrôle plus rien, ou avez vous trouvé un moyen de garder cette régulation tout en agissant dessus avec ON / OFF ?
Pour TA1 et TA2, je vais regarder quand je ré-appairerai le module, merci.
Bonjour. Lors de ce réglage je constate que la prise bus est tjs occupée or vous dîtes qu’il faut faire une croix sur son thermostat chaffotteaux avec la domotique. Merci de me dire s’il faut laisser le thermostat chaffotteaux ou s’il faut le supprimer pour utiliser sa chaudière en mode domotique.
Bonjour, j’ai pour ma part déconnecté complètement les thermostats d’origine. Ils sont éteints. Je ne saurai dire ce qui se passe si ils sont connectés.
Bonjour,
Avez vous des nouvelles ? Est-ce que cela fonctionne ?
Bonjour très intéressant comme solution une seule question pourquoi ne pas avoir mis des electrovanne sur les colecteurs?
Ça ne vous aurait pas permis de gérer la température de chaque pièce individuellement? Au lieux de finalmente et si j’ai bien compris avoir tout de même la même température partout?
Merci de votre réponse
Bonjour,
Cette solution se base sur une installation de chauffage tout à fait standard, c’est un avantage non négligeable.
S’agissant d’un plancher chauffant au RDC il est difficile de gérer cela par zone, et pour tout dire je n’en ai pas vraiment besoin (peut être pour la chambre du RDC, mais avec le plancher bois sa température est en moyenne réduite de 2°C)
Par contre à l’étage je gère effectivement la température par pièce mais sans passer par des électrovannes. Cela fera l’objet du prochain article concernant la domotisation de mon système de chauffage à paraître dans les jours qui viennent.
Restez connecté 🙂
Bonjour à tous,
J’ai une maison individuelle RT2012 de 100 m² avec un plancher chauffant au rdc ainsi que des radiateurs à l’étage pour chaque chambres, le tout chauffé au gaz de ville par une chaudiere Chaffoteaux Talia Green System équipe d’un boitier expert Control
Ce Boitier est relié sur le port “BUS” de la chaudière.
Je n’arrive pas à faire fonctionné correctement le thermostat, aussi bien branché sur la sonde TA1 ( je suppose que cela gère uniquement les radiateur de la zone 1 ) que sur la sonde TA2Floor ( plancher chauffant) .
Comment faire pour que le thermostat gère mes deux zones de chauffage chez moi ( plancher chauffant et radiateur à l’étage) ?
Comment brancher mon thermostat sur la chaudière?
Dois-je garder mon boitier expert Control connecté sur le port BUS de la chaudière ?
Dois-je le remplacer par le thermostat ?
je n’arrive pas a trouvé une information précise par rapport à cela ..
Bonjour, quand vous parlez d’un thermostat, il s’agit d’un thermostat supplémentaire et non du boîtier expert control, c’est bien ça ? De quel type de thermostat s’agit t’il ?
Bonsoir,
Cela fait un moment qu’il n’y a plus de nouvels articles sur votre site, puis je vois que le site n’est plus maintenuà jour, ancien version de WordPress, thème Hueman non à jour, cela doit être pareil pour le plugins, pas de problème, j’espère.
Cordialement
Bonjour,
Et oui et je le regrette, le temps me manque. Travail, travaux, jardinage, mise en place d’un nouveau serveur linux, etc…
La mise à jour du site web est passé sous la pile des priorités. Mais cela ne veut pas dire qu’il ne va continuer à vivre je vous rassure.
J’ai d’ailleurs de nombreux nouveaux sujets (machine virtuel linux, serveur centralisé de chaîne TNT, kodi, …)
En tout cas merci de ce commentaire bienvenue pour remettre un peu de baume au coeur 🙂